コンテンツへスキップ ナビゲーションに移動

安曇野市移住情報サイト

  • 新着情報
  • 安曇野市って?
  • 暮らし
  • 住まい

安曇野市移住情報サイト

  • 仕事
  • 子育て・教育
  • 移住サポート
  • Q&A
安曇野市移住navi

移住希望登録

グループリンク
  1. TOP
  2. 空き家バンク
  3. 穂高有明 7348番3

中古住宅 穂高有明 7348番3

価格 800 万円
このページを印刷
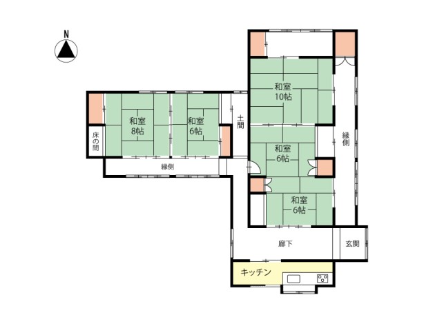
土地面積 843.43m2(公簿)/255.13坪 建物面積 128.29m2/38.8坪
築年月 間 取 4K
  • 市町村空き家バンク登録物件
  • 週末暮らし物件
  • 古民家風
  • 山が見える
最終更新日:2026.05.12
お問合せをする
有明山を望む安曇野らしい立地
有明山を望む安曇野らしい立地
  • 有明山を望む安曇野らしい立地
  • 北側の眺望
  • 西側道路接道
  • 北側接道
  • 建物外観
  • 建物外観
  • 古民家部分の座敷
  • 北西側の縁側
  • 昭和50年代の増築部分
  • 下上座敷~縁側
  • 建物外観
  • 玄関~廊下
  • 地下部分
  • 台所
所在地安曇野市穂高有明7348番3建物名
価格800万円税金
土地面積843.43m2(公簿)/255.13坪建物面積128.29m2/38.8坪
間取4K構造木造
詳細間取
総階数1階完成年月
湯権下水道個別浄化
通学区引渡/入居日相談
管理番号物件番号451975
設備・システムキッチン・浄化槽・地下室・田舎リゾート向き
駐車場有
交通電車:大糸線安曇追分駅 3900m
備考別途72㎡の農地は売主の費用負担で宅地となり、今回の売買対象となる予定です。建物内にはトイレ、お風呂、洗面所がありません。
水廻りを含めてリフォームが必須となります。
取引態様一般媒介手数料要

山共建設(株)

0263-77-3161
所在地 〒399-8102 長野県安曇野市三郷温3350
免許番号 長野県知事免許(2)第5678号
業務時間 08:00〜17:00 休日
電話 0263-77-3161 FAX 0263-77-3164
空き家情報を閲覧する 詳しく見る

資料請求&お問合せ


Japan
お名前 必須
 
例)安曇野 太郎
ふりがな 必須
 
例)あずみの たろう
E-mail 必須 例)seisakukeiei@city.azumino.nagano.jp
確認用入力
ご住所
電話
- -
例)03-1234-1234
FAX番号 FAXで資料等をご請求する場合はご登録ください。
- -
例)03-1234-1234
お問合わせ内容 必須

送信内容を確認

安曇野市 市民生活部 移住定住推進課

〒399-8281 長野県安曇野市豊科6000番地
受付時間:平日 8:30~17:15
TEL:0263-71-2081(直通)
FAX:0263-72-1340
iju-teiju@city.azumino.nagano.jp

お問い合わせフォーム
個人情報保護方針
著作権・免責事項

Copyright © 安曇野市移住navi All Rights Reserved.

Powered by WordPress & Lightning Theme by Vektor,Inc. technology.

MENU

安曇野市 市民生活部 移住定住推進課
〒399-8281 長野県安曇野市豊科6000番地
受付時間:平日 8:30~17:15
TEL:0263-71-2081(直通)
FAX:0263-72-1340
iju-teiju@city.azumino.nagano.jp

個人情報保護方針

著作権・免責事項

  • Instagram
  • X
  • YouTube
  • 安曇野市って?
    • 安曇野市の魅力
    • 県外とのアクセス
    • 5エリアの特徴
    • 自然環境
  • 暮らし
    • 区について
    • 交通事情(県内)
    • 医療・介護・福祉
  • 住まい
    • 探し方
    • 空き家バンク
    • リフォーム
    • 手続き
  • 仕事
    • 就業(転職)
    • 起業
    • 就農
  • 子育て・教育
    • 子育て環境
    • こども園・幼稚園
    • 小学校・中学校
    • 高校・その他の進路
  • 移住サポート
    • 移住協力店
    • 補助制度
    • 移住サポート
  • Q&A   
  • おしらせ一覧
    • 移住希望登録フォーム
    • 移住体験談(移住希望登録者限定コンテンツ)
    • お問い合わせ